Bernhardstraat 19 Haelen
VERKOCHT
ALGEMEEN
Adres
Bernhardstraat 19, 6081 EN Haelen
Bouwjaar
1959
Gebruiksoppervlakte van de woonfunctie
Circa 106 m²
Overige inpandige ruimte
circa 12 m²
Externe bergruimte (garage en berging)
circa 25 m²
Gebouw gebonden buitenruimte
circa 7 m²
Inhoud
circa 400 m³
Perceeloppervlakte
286 m²
Vraagprijs
€ 275.000,= kosten koper
Aanvaarding
In overleg
INDELING
Kelder
Praktische kelderruimte gelegen onder de hal van de woning. Hier bevindt zich tevens de opstelling van de elektrische boiler en witgoedaansluitingen.
Begane grond
Royale ontvangsthal, garderobe en toiletruimte voorzien van duoblok en fontein. Doorzon woonkamer met openslaande deur naar de tuin. Door de grote raampartijen is er veel lichtinval in de woonkamer wat voor een aangenaam leefklimaat zorgdraagt. Dichte keuken met inbouw kookplaat, afzuigkap, koelkast en vriezer met drie lades. De keuken is in 2021 gerenoveerd. Zowel vanuit de keuken als vanuit de woonkamer heeft u toegang tot de tuin.
Tuin
De woning beschikt over een grote tuin met vrij uitzicht. De tuin is maar liefst ca. 19 meter diep en 8 meter breed, is gelegen op het noordwesten en heeft een eigen achterom. De stenen berging is een prima plek voor het stallen van uw fietsen en het opbergen van tuingereedschap.
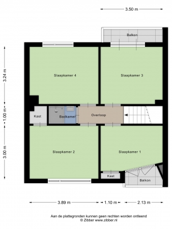
Eerste verdieping
Op de eerste verdieping zijn vier ruime slaapkamers gelegen van respectievelijk 10,5, 11,7, 11,3 en 12,6 m² groot. Twee slaapkamers zijn voorzien van een balkon en twee slaapkamers hebben een inbouw kledingkast. Alle kamers zijn voorzien van elektrisch bedienbare rolluiken. De badkamer is voorzien van inloopdouche en wastafel.
Garage en berging
De woning beschikt over een praktische berging en heeft een eigen garage. De garage is gelegen om de hoek aan de Irenestraat.
Voorzieningen en installaties
Elektriciteit
De woning is voorzien van een nieuwe meterkast met 9 groepen en drie aardlekschakelaars.
Overige voorzieningen
Gas, water en glasvezel.
Airconditioning
Er zijn twee airconditioning installaties aanwezig (keuken en woonkamer) welke kunnen koelen en verwarmen, bouwjaar 2022.
Haard
Er zijn twee goed onderhouden gashaarden aanwezig. De gasmeter is recent vernieuwd.
Warmwatervoorziening
De warmwatervoorziening vindt plaats middels een elektrische Boiler, bouwjaar 2022. De boiler is gehuurd. Het contract is eventueel ter overname.
Rolluiken
De woning is vrijwel geheel voorzien van elektrisch bedienbare rolluiken.
Berging
De woning beschikt over een vrijstaande stenen berging in de tuin. Afmeting ca. 3.70 x 2.70 meter.
Garage
De woning beschikt over een vrijstaande garage met dubbele openslaande deuren. De afmeting van de garage is ca. 5.00 x 3.00 meter.
Mail vriend / vriendin | Neem contact met ons op | Download brochure
